【京都・四条・河原町、麩屋町・綾小路・柳馬場】 阪急/京阪/京都市営地下鉄烏丸線 交通至便 マンション テナント【アイカーサ】

アイカーサ柳馬場
四条烏丸・四条河原町徒歩3分、京都大丸徒歩4分
柳馬場通綾小路下る、2021年1月築、5階建テナントビル
医科・歯科等クリニック、薬局、軽飲食、物販、
事務所、エステ、ネイルサロン、各種フィットネス、パーソナルジム、
フォトスタジオ等向、ワンフロア貸
- 物件種別
- 商業ビル
- 所在地
- 京都市下京区柳馬場通綾小路下る
永原町148番地1 - 最寄駅
- 阪急京都本線「烏丸駅」「京都河原町駅」
京都市営地下鉄烏丸線「四条駅」
12番出口徒歩3分
- 築年月
- 2021年1月《築浅物件》
- 構造
- 鉄骨造陸屋根 5階建 西向き
- 敷地面積
- 90.28m²
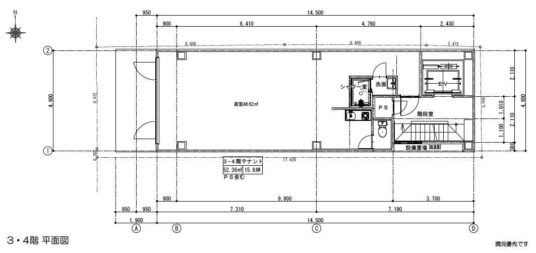
- 面積
- 1階:47.56m²
2階:56.73m²
3階:52.36m²
4階:52.36m²
5階:48.22m²
- 駐車場
- なし、近隣にコインパーキング有
- 駐輪場
- なし
- 設備
- 公営水道、都市ガス、エレベーター、1~2階スケルトン、3~5階シャワールーム・キッチン・トイレ有
| ★ 即入居募集中『アイカーサ柳馬場』の物件情報 ★ | |||
|---|---|---|---|
| 2021年1月築テナントビル、医科・歯科・クリニック、薬局、物販、事務所、軽飲食可 エステ、ネイルサロン、各種フィットネス、パーソナルジム、フォトスタジオ等向 |
|||
| 1階 | 入居中 |
||
| 2階 | 入居中 |
||
| 3階 |
賃料:308,000円(内消費税10%28,000円) 敷金:180,000円 礼金:1,100,000円(内消費税10%100,000円) ワンフロア貸 シャワー室、洗面台、ミニIHキッチン、ウォシュレットトイレ有、エアコン有 |
||
| 4階 | 入居中 |
||
| 5階 | 入居中 |
||
| 共益費 | 33,000円(内消費税10%3,000円) | 水道代 | 実費 隔月検針後請求 |
| 町内会費 | 各階町内会費 要(町内会に直接支払い) | 契約期間 | 更新3年(更新料なし) |
| 他費用 | 入居時:
火災保険加入必須、保証会社加入必須 更新時:更新事務手数料33,000円(内消費税10%3,000円) |
||
| その他条件 | 適用税率は改正に従い変更します | ||






















